Documenting the process βπ½
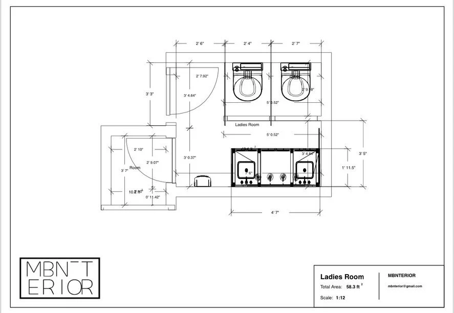
Here’s the current floor plan of the ladies room at The Post — alongside my proposed layout designed to improve flow, comfort, and functionality within the existing footprint.
Thoughtful planning makes all the difference.
Stay tuned for the rendering π
#bathroomrenovation #veteranshall #interiordesignprocess #floorplan #spaceplanning womensrestroom thankyouforyourservice πΊπΈ
MOODBOARD MONDAY β¨
Presented three distinct concepts to my client for his den/sunroom. Each one telling a different story through texture, tone, and warmth.
Concept #1: Soft neutrals + organic warmth
Concept #2: Earthy contrast + subtle pattern
Concept #3: Modern depth + bold grounding
Same space. Three completely different energies.
Now I’m curious… π
Which one do you think the client chose?
By the way, he was not very picky and just wanted to see what I could come up with.π π€
#MBNterior #MoodboardMonday InteriorConcept DesignProcess InteriorStyling
Slide 1: Original tv stand
Slides 2-4: The process
Slides 5 & 6: End Result
Practicing my Revitt skills by recreating this tv stand from Ashley Furniture.π
Revitt is a complicated one, that’s for sure. Haha but I am excited to keep practicing.
#Revitt #ashleyfurniture #CAD
Warming up this cool space.πWhat’s your favorite color to design with?π€ #IDI #Module3 #moodboards #firstmoodboard (I do not own the rights to the first pic. I am currently looking up the original post for it then I will credit them once I find it.)